Loading...

 The Polite House

Location : Trondheim, Norway
Building type : Single family home
Client : Tonje Evanger, Tom Arne Pedersen
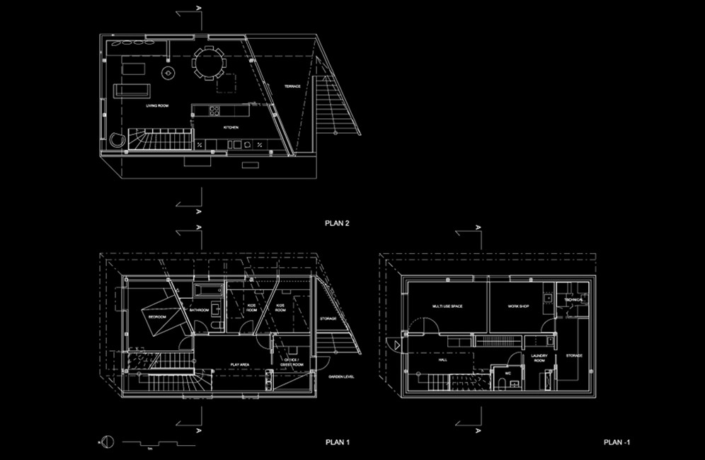
Size : 170 m²
Schedule : Completed 2012
Consultants : Byggmester Hans Helseth AS
Primary architects :

Einar Jarmund, Håkon Vigsnæs, Alessandra Kosberg, Ane Sønderaal Tolfsen, Claes Cho Heske Ekornås, Paul-Henri Henn

Situated in the residential area of Havstein, this compact single family house is overlooking the fjord and city of Trondheim. The house has a modest and abstract formal character in a neighbourhood with various density and architectural expressions. Regulated minimal distance to adjacent road is maintained by the shifting geometrical shape of the house. The shift also obtains a significant view for a neighbour up the hill. These two obstructions - road and neighbour - gave the house its characteristic form.                                                                    

The vase-like expression of the house has emerged from minimal details, along with an exterior and interior cladding in white fiber cement panels. Ceilings are in birch plywood and the floor is made in epoxy terrazzo cast on site which gives a warm atmosphere to the interior. 

 

 

JARMUND/VIGSNÆS AS ARKITEKTER MNAL